
The Old and New Quarter
The Old and New Quarter
Jaipur. Rajasthan
A home that blends tradition and modernity, where a stone-built heart honors heritage and shared spaces foster the warmth of an interwoven joint family life.
Client
Mr. Puneet Sanghi
Type
Villa
Built-up Area
2,300
sqm
Site Area
3,237
sqm
Status
Completed
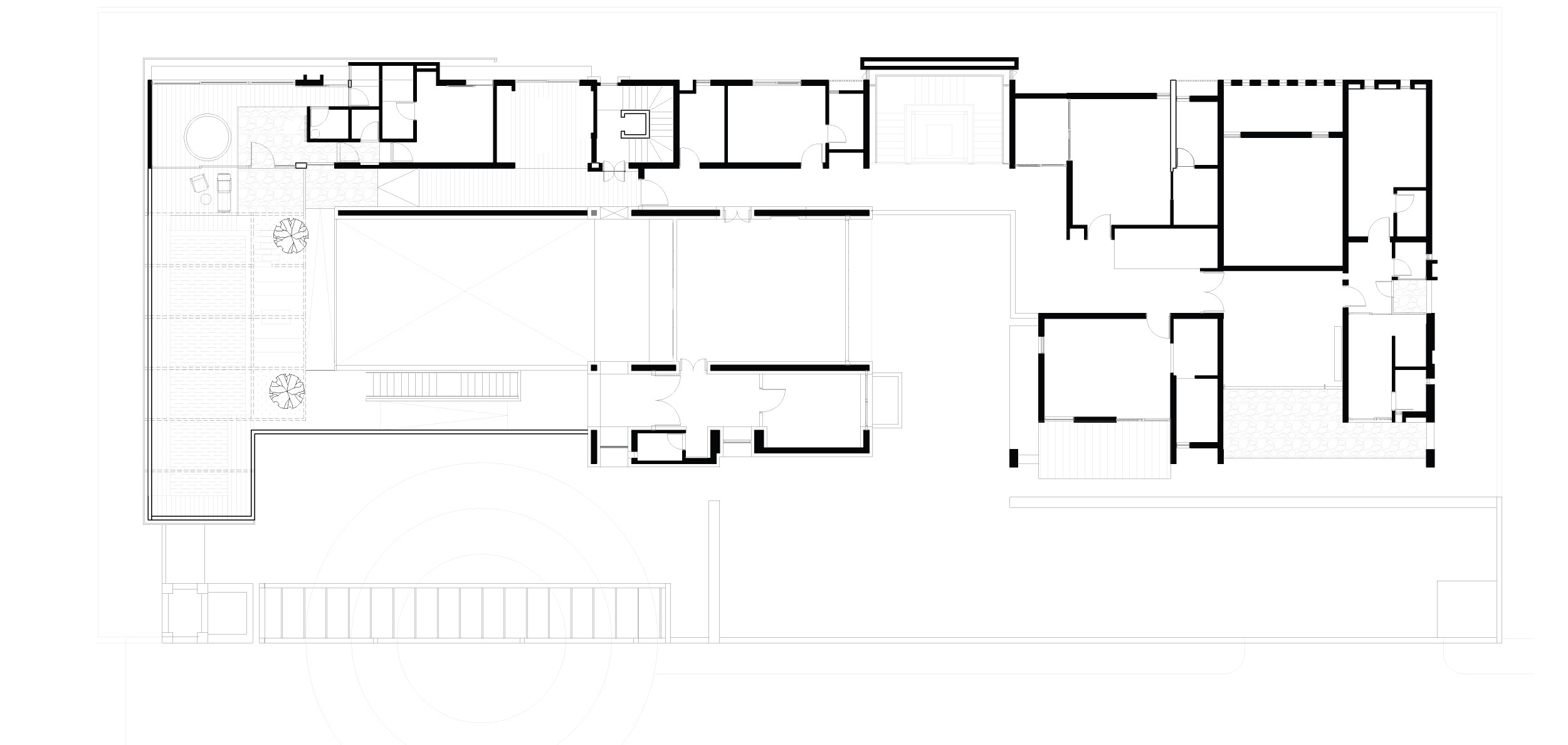
A residential building conceptualized/conceived for a joint family with customs, social life and living style intact in their day-to-day life. It is an interwoven family, with members living close to each other without any separation in major utility areas. According to conceptualization in design, execution for form and planning is based on the old construction style when we used to have stone structures. So, for this residence we have a central structure built in stone giving the feel and aesthetics as per earlier style. Covering this structure, the remaining built form is being constructed in modern and contemporary style. Thus, deriving the form with an amalgamation of both modern and old structures can be seen throughout the form.
Team
Sangeeta Maithel, Manoj Jangid

Countyard view blending greenery and stone built heritage with contemporary living space in a joint family home.

Elevation

Enhancing shared moments through living spaces.

Open, nature-integrated classrooms enhance air quality, boost well-being, reduce stress, and foster creativity and collaboration.
The provision of spaces within the design is carefully tailored to meet the client’s requirements while maintaining a sense of community and harmony. Core functional areas such as the living space, swimming pool, bar, and gazebo serve as shared zones that foster interaction and togetherness among users. These spaces are thoughtfully integrated with well-planned landscaped zones, ensuring a seamless connection between built and natural environments. The landscape not only enhances the aesthetic appeal but also creates a calming and cohesive atmosphere, blurring the boundaries between indoor and outdoor experiences. Overall, the design emphasizes functionality, social engagement, and a deep connection with nature.

Ground Floor

First Floor

View 1

View 2

View 3

View 4